Utilizando grafito resistente al agua, el grafito de la camisa de agua puede producir HCl de manera eficiente y garantizar un control preciso de la temperatura y condiciones de reacción óptimas.
Artículo No :
SSLOrden (MOQ) :
1Pago :
Alipay PayPal westernunion T/T L/COrigen del producto :
ChinaColor :
CustomizedPuerto de embarque :
shanghai shenzhen guangzhouTiempo de espera :
please contact 504893184@qq.com or CP +8613696510409Paquete :
CustomizedMaterial :
GraphiteTemperatura de trabajo :
Export≤45℃,Graphite wall≤170℃Horno de síntesis de cloruro de hidrógeno de grafito con camisa de agua
Se compone de una carcasa de acero, una cubierta de grafito, un cilindro sintético y un fondo. Presenta varias ventajas con respecto a un horno con carcasa de acero, entre ellas:
1. una larga vida útil (generalmente más de diez años);
2. Alta pureza del ácido del producto;
3. Condiciones de trabajo favorables con fácil control y gestión.
Ventajas del producto
El horno de síntesis de cloruro de hidrógeno de grafito con camisa de agua se caracteriza por su excepcional resistencia a la corrosión, una eficiente transferencia de calor, un control de temperatura estable y una larga vida útil. Su robusta estructura garantiza un rendimiento fiable en entornos químicos exigentes, proporcionando una producción de HCl segura, constante y eficiente con mínimos requisitos de mantenimiento.
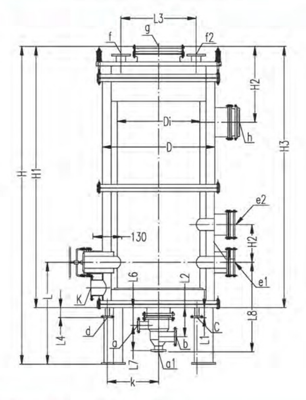
Diagrama estructural
| Detalles de las piezas | |
| 1 | Puerto a prueba de explosiones |
| 2 | Salida de agua de refrigeración |
| 3 | Salida de refrigeración |
| 4 | salida de HCl |
| 5 | cilindro sintético de grafito |
| 6 | Puerta del horno |
| 7 | Entrada de agua de refrigeración |
| 8 | Espejo |
| 9 | Tres juegos de quemadores de vidrio de cuarzo |
| 10 | Espejo |
| 11 | puerto de drenaje |
| 12 | Salida de ácido |
| 13 | Entrada de cloro |
| 14 | Entrada de hidrógeno |
Tabla de parámetros de boquilla

| Símbolo | a | b | c | d | e | f | g | h | k |
| Presupuesto | DN/D1 | DN/D1 | DN | DN | DN | DN | DN | DN/D1 | DN |
| SSL-300 | 40/125 | 40/125 | 20 | 50 | 125 | 80 | 250 | 75/180 | 40 |
| SSL-400 | 55/145 | 55/145 | 20 | 50 | 125 | 100 | 250 | 100/210 | 50 |
| SSL-500 | 70/180 | 70/180 | 20 | 50 | 125 | 125 | 250 | 125/240 | 65 |
| SSL-600 | 84/210 | 84/210 | 20 | 50 | 125 | 150 | 400 | 150/295 | 80 |
| SSL-700 | 100/210 | 100/210 | 20 | 50 | 125 | 200 | 400 | 200/350 | 100 |
| SSL-800 | 115/240 | 115/240 | 20 | 50 | 125 | 200 | 400 | 200/350 | 100 |
| SSL-900 | 115/240 | 115/240 | 20 | 50 | 125 | 200 | 400 | 250/400 | 125 |
| SSL-1000 | 115/240 | 115/240 | 20 | 50 | 125 | 200 | 400 | 250/400 | 150 |
| Boquilla estándar de conexión |
HG 20593 | HG 20593 | - | HG 20593 | - | HG 20593 | - | - | HG 20593 |
| Nivel de presión MPa |
1.0 | 1.0 | - | 1.0 | - | 1.0 | - | 1.0 | 1.0 |
| Uso de boquillas | Entrada de hidrógeno | Entrada de hidrógeno | Salida de ácido | puerto de escape | Puerto espejo | Salida de agua | Puerto a prueba de explosiones | Salida de hidrógeno hidrogenado | Entrada de agua de refrigeración |